146 E Farmer — CSL New Construction
For Sale New Construction

146 E Farmer

Independence, MO · Community Services League
← Back to Projects

About This Project

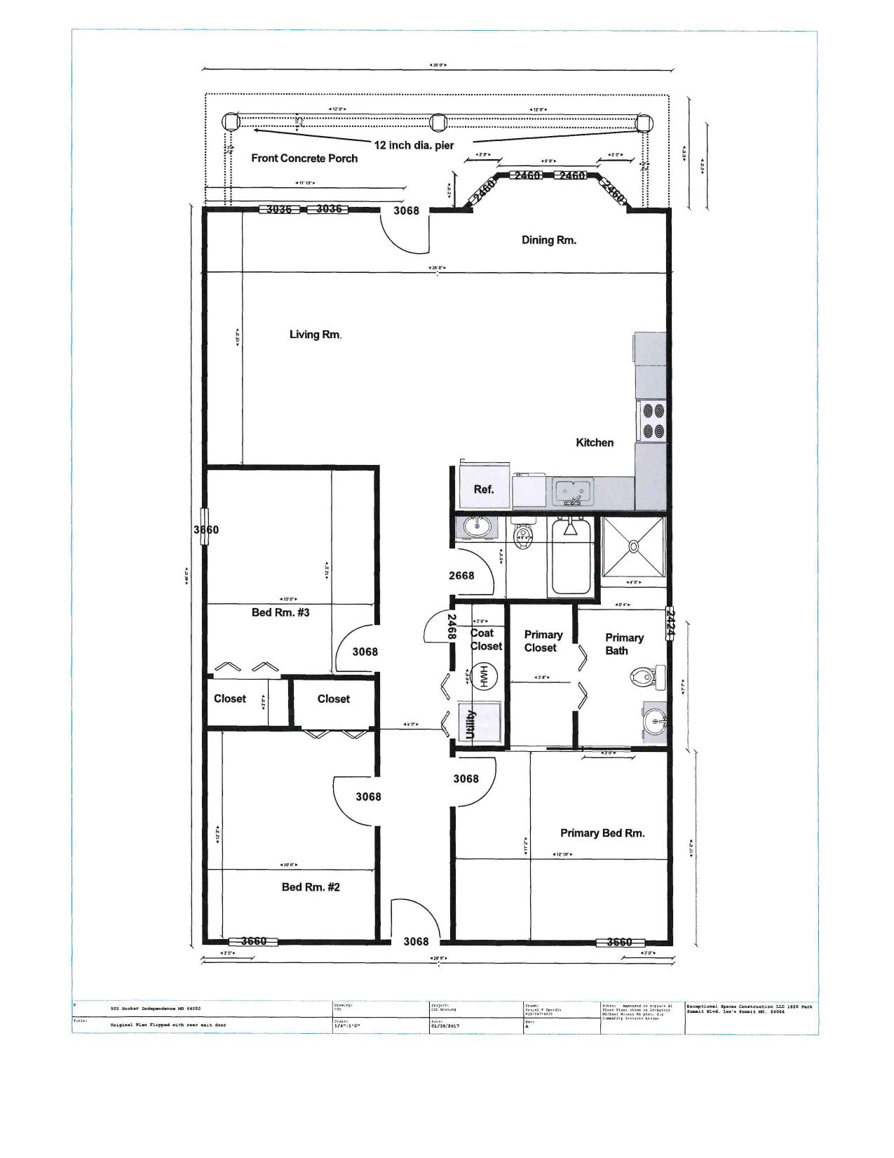
146 E Farmer is a brand-new, single-family home in Independence, MO developed by Community Services League — a nonprofit making meaningful and lasting change in neighbors' lives since 1916. This 3-bedroom, 2-bathroom ranch offers affordable homeownership at $185,000 for income-qualifying buyers.

The home features an open-concept living and dining area, a full kitchen with refrigerator space and adjacent laundry, a spacious primary suite with walk-in closet and private bath, two additional bedrooms, and a welcoming front concrete porch — all on a single-floor layout designed for comfort and accessibility.

Home highlights:

  • 3 bedrooms / 2 bathrooms
  • Open living and dining room
  • Primary suite with walk-in closet and private bath
  • Front concrete porch
  • New construction — never lived in
  • Located in Independence, MO

Community Services League (CSL) is a cornerstone organization in the Independence/Kansas City area, providing housing, food, financial assistance, and support services to families in need. Their Affordable Homes program builds quality new-construction homes that make ownership possible for working families. Contact CSL directly at bradfordd@cslcares.org or call (816) 506-5229 for eligibility and purchase details.

Project Details

$185,000 List Price — New Construction
3 Bedrooms
2 Baths
1 Story
1,240 Sq Ft
Status For Sale
Type New Construction
Location Independence, MO
Developer Community Services League
Contact (816) 506-5229
← All Projects

Location

Ready to invest in Kansas City's future?

The Way Home connects builders, lenders, and funders to deliver affordable homes at the speed Kansas City needs.

Partner With Us →