Harris Park
Needs CapitalPlanning

Harris Park

Ivanhoe, Kansas City · Harris Park Midtown Sports and Activities Center
← Back to Projects

About This Project

The Harris Park Housing Project is a transformative affordable housing initiative rooted in the revitalization efforts of the Ivanhoe neighborhood in Kansas City, Missouri. Central to this endeavor is Harris Park, a dynamic community space established by lifelong resident Chris Harris.

Over the past two decades, Harris has dedicated himself to converting previously blighted areas into vibrant hubs of activity and learning. Harris Park now features a three-hole golf course, basketball and volleyball courts, green spaces, and a community pavilion, all designed to foster community engagement and development.

The housing project has successfully acquired ten plots designated for the development of affordable duplexes and triplexes. Furthermore, there is potential to construct over 40 single-family homes through collaboration with the Kansas City Land Bank and the Kansas City Homesteading Authority.

Chris Harris's vision extends beyond physical redevelopment; he is committed to altering perceptions and mindsets about the community. By integrating sports and recreational facilities with housing initiatives, Harris Park serves as a catalyst for positive change, instilling pride and a sense of ownership among residents. This holistic approach addresses both the tangible and intangible aspects of community revitalization, fostering an environment where individuals can thrive.

Harris Park Capital Campaign

Harris Park is raising capital to fund the construction of new affordable single-family homes in the Ivanhoe neighborhood.

$500K raised $3M goal
$2,500,000 remaining

Project Details

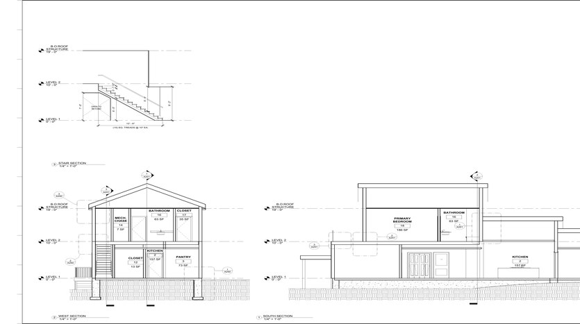
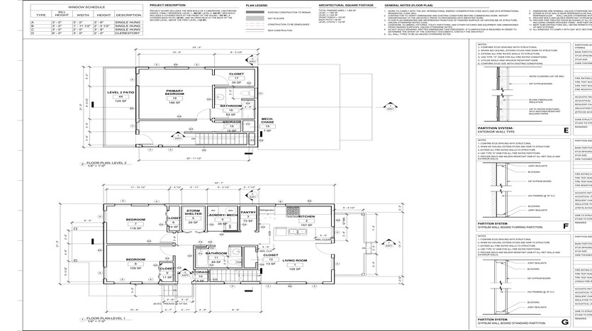
1,600 SF per Home
Status In Development
Type New Construction – Single-Family
Location Ivanhoe, Kansas City
Developer Harris Park Midtown Sports and Activities Center
AMI Target 30–60% AMI
Rent Range $400–$900/mo
Capital Goal $3,000,000
Raised to Date $500,000
← All Projects

Location

Ready to invest in Kansas City's future?

The Way Home connects builders, lenders, and funders to deliver affordable homes at the speed Kansas City needs.

Partner With Us →